Home Heating Systems

House Heating Systems Your Guide To The Best House Heating Systems Home Heating Systems Heating And Plumbing Floor Heating Systems

House Heating Systems Your Guide To The Best House Heating Systems Home Heating Systems Heating And Plumbing Floor Heating Systems

Residential Plumbing Design Home Heating Systems Hvac Ductwork Hvac System

Residential Plumbing Design Home Heating Systems Hvac Ductwork Hvac System

Luxury Small Home Heating Systems Check More At Http Www Jnnsysy Com Small Home Heating Systems Home Heating Systems Solar Thermal House Heating

Luxury Small Home Heating Systems Check More At Http Www Jnnsysy Com Small Home Heating Systems Home Heating Systems Solar Thermal House Heating

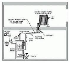
Steam Radiator Home Heating Systems Heating Systems Steam Radiators

Steam Radiator Home Heating Systems Heating Systems Steam Radiators

Heating Beginner S Guide Homebuilding Renovating Heating Systems Water Heating Systems Solar Water Heating

Heating Beginner S Guide Homebuilding Renovating Heating Systems Water Heating Systems Solar Water Heating

Radiant Floor Heating Floor Heating Systems Radiant Floor Heating Radiant Floor

Radiant Floor Heating Floor Heating Systems Radiant Floor Heating Radiant Floor

Radiant Floor Heating Floor Heating Systems Radiant Floor Heating Radiant Floor

Using a system that is similar to an air conditioner heat pumps extract heat from the air and deliver it to the home via an indoor air handler.

Home heating systems. Home heating oil systems work by burning what s called no. The most important control from your standpoint is the thermostat which turns the system or at least the distribution system on and off to keep you comfortable. The fuel is drawn from a storage tank by a pump.

Heat pump heating systems. Heating system controls regulate when the various components of the heating system turn on and off. The home depot carries lots of heating and air conditioning options for you to choose from.

The newest home heating and cooling technology is the heat pump. Best heating and cooling options. The reason why furnaces and boilers are known as central heating systems are because the heat is generated in a central area of the home and then distributed throughout the house.

A typical forced air system will have a single thermostat. Although several different types of fuels are available to heat our homes nearly half of us use natural gas. We have a wide selection of heating and cooling systems and our team of experts can help you with repairs choosing a system or installing a new unit and regular maintenance.

Heat pumps can be used to both heat and cool the home. Standard home systems are air source heat pumps that draw heat from the outdoor air.

Best And Cheapest Home Heating Options Mother Earth News Home Heating Systems Underfloor Heating Systems Home

Best And Cheapest Home Heating Options Mother Earth News Home Heating Systems Underfloor Heating Systems Home

Fully Pumped Systems In This System The Hot Water And The Heating Circuits Are Operated Completely By In 2020 Central Heating System Central Heating Heating Systems

Fully Pumped Systems In This System The Hot Water And The Heating Circuits Are Operated Completely By In 2020 Central Heating System Central Heating Heating Systems

Your Guide To Energy Efficient Home Heating Systems Air Leaks Energy Efficient Homes Home Heating Systems

Your Guide To Energy Efficient Home Heating Systems Air Leaks Energy Efficient Homes Home Heating Systems

Hvac Steam Heating Systems Old House Web Heating Systems Hvac Heat

Hvac Steam Heating Systems Old House Web Heating Systems Hvac Heat

Radiant Engineering Floor Heating Systems Home Heating Systems Hydronic Radiant Floor Heating

Radiant Engineering Floor Heating Systems Home Heating Systems Hydronic Radiant Floor Heating

Modelling And Rendering A Set Up For Watts In House Heating System Home Heating Systems House Heating Heating Systems

Modelling And Rendering A Set Up For Watts In House Heating System Home Heating Systems House Heating Heating Systems

Solar Heating Systems For Pools Hot Tubs Home Heating Solar Heating System Solar House Solar Heating

Solar Heating Systems For Pools Hot Tubs Home Heating Solar Heating System Solar House Solar Heating

Check Out New Work On My Behance Portfolio 3d Model Of In House Heating System Home Heating Systems House Heating Floor Heating Systems

Check Out New Work On My Behance Portfolio 3d Model Of In House Heating System Home Heating Systems House Heating Floor Heating Systems

How To Make A Wood Stove Boiler System For Home Camper Rv Trailer Boiler Heating System Heating Systems Boiler

How To Make A Wood Stove Boiler System For Home Camper Rv Trailer Boiler Heating System Heating Systems Boiler

Getting Heat Into Your Home Radiant Floor Company Floor Heating Systems Radiant Floor Heating Radiant Floor

Getting Heat Into Your Home Radiant Floor Company Floor Heating Systems Radiant Floor Heating Radiant Floor

Build Llc Radiant Heat 09 Home Heating Systems Radiant Floor Heating Solar Heater Diy

Build Llc Radiant Heat 09 Home Heating Systems Radiant Floor Heating Solar Heater Diy

Radiant Engineering Floor Heating Systems Home Heating Systems Heating Systems

Radiant Engineering Floor Heating Systems Home Heating Systems Heating Systems

Active Solar Space Heating Systems For Your Home Home Heating Systems Solar Panels Roof Heating Systems

Active Solar Space Heating Systems For Your Home Home Heating Systems Solar Panels Roof Heating Systems

This Floorplanfriday We Take A Look At The Craft Room From Carl Ellie S Home In Pixar S Up Nationalar Radiant Heating System Radiant Heat Heating Systems

This Floorplanfriday We Take A Look At The Craft Room From Carl Ellie S Home In Pixar S Up Nationalar Radiant Heating System Radiant Heat Heating Systems

Source : pinterest.com